Thiết kế nội thất căn hộ 3 phòng ngủ sang trọng gỗ óc chó của anh Thiện
Thiết kế nội thất căn hộ 3 phòng ngủ sang trọng gỗ óc chó của anh Thiện
Xin giới thiệu một mẫu thiết kế nội thất căn hộ được thiết kế sáng tạo bởi đội ngũ kiến trúc sư HAPPY DECOR sử dụng gỗ óc chó cao cấp. Chúng ta hãy nhìn vào các mẫu thiết kế nội thất dưới đây, hãy xem cách chúng tôi lên kế hoạch!
Thông tin dự án:
Dự án: Thiết kế và thi công nội thất căn hộ 3 phòng ngủ
Tên chủ nhà: Mr Thiện
Địa chỉ: Biên Hòa, Đồng Nai
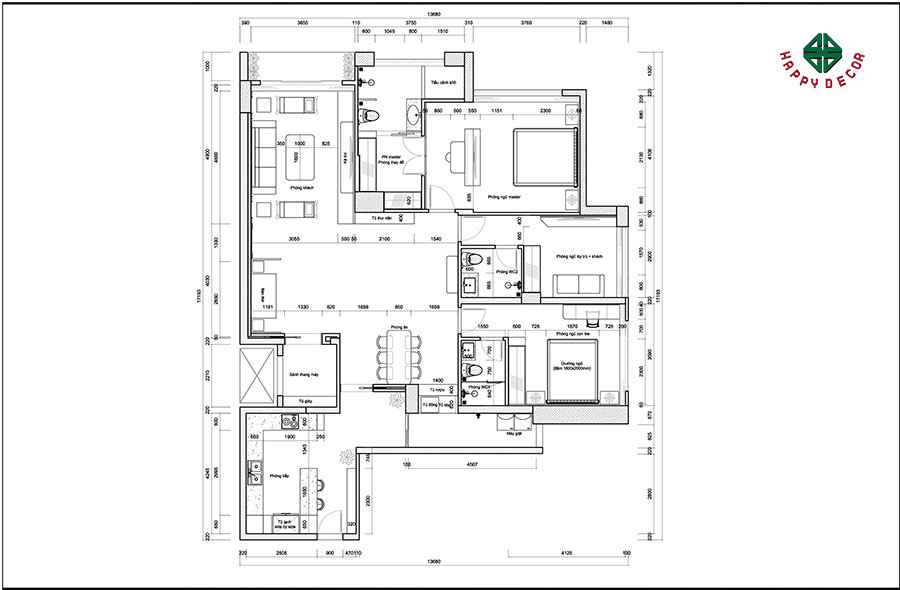
Loại: Phòng khách, bếp, 3 phòng ngủ, 3 WC
Diện tích: 118 mét vuông
Phong cách thiết kế: hiện đại
Bản thiết kế mặt bằng nội thất chung cư
Thiết kế nội thất căn hộ 3 phòng ngủ sang trọng gỗ óc chó
Thiết kế nội thất sảnh thang máy căn hộ
Thiết kế nội thất sảnh thang máy - View 1
Thiết kế nội thất sảnh thang máy - View 2
Thiết kế nội thất căn hộ với phòng khách gỗ óc chó
Việc sử dụng gỗ óc chó trong thiết kế nội thất phòng khách là một ý tưởng sáng tạo, độc đáo mang đến sự thoải mái, tinh tế cho không gian.
Phòng khách tiện nghi với bộ sofa gỗ óc chó đặt giữa phòng khách
Một trong những yếu tố quan trọng là lựa chọn vật liệu. Gỗ óc chó được sử dụng rộng rãi trong thiết kế này, từ bọc ghế sofa, tường, kệ cho đến tủ. Sử dụng vật liệu quả óc chó Sẽ tạo ra một không gian thoải mái, riêng tư mang lại cảm giác tự nhiên. Ngoài ra còn tạo nên sự sang trọng, đẳng cấp cho không gian phòng khách của gia đình anh Tập tại khu chung cư Ciputra của họ.
Bộ ghế sofa quỳ làm bằng gỗ óc chó tông màu nâu hạt dẻ đẹp mắt với những đường nét mềm mại, uyển chuyển sẽ là tâm điểm. Phía trên ghế là đệm da microfiber cao cấp cực kỳ bền, dày và có khả năng chống cháy.
Nội thất chủ yếu được làm bằng gỗ cao cấp và bố trí khoa học.
Được trang bị bàn cà phê gỗ óc chó và mặt kính cường lực tạo nên không gian tiếp khách sang trọng và tinh tế cho gia chủ mỗi khi có bạn bè đến thăm.
Giá đỡ TV và tủ đựng đồ cũng có thể được làm từ gỗ óc chó. Chúng không chỉ tạo không gian để trưng bày những món đồ yêu thích mà còn tạo sự cân bằng và ngăn nắp cho không gian phòng khách.
Tường khu vực tivi được trang trí ấn tượng bằng chất liệu PVC hoa văn đá nhân tạo
Ánh sáng cũng đóng một vai trò quan trọng trong thiết kế nội thất phòng khách bằng gỗ óc chó. Ánh sáng tự nhiên từ cửa sổ ban công lớn được tận dụng tối đa, giúp tạo không gian sáng sủa, thoáng mát.
Các loại đèn trang trí như đèn chùm, đèn LED cũng được lắp đặt chắc chắn trên trần nhà nhằm tạo điểm nhấn, tạo không gian ấm áp, lãng mạn về đêm.
Để tăng vẻ đẹp cho nơi ở, chúng tôi trang trí và bố trí tranh tường, rèm cửa, đồ trang sức và các vật dụng trang trí khác trong không gian phòng khách nhằm tạo ra một thế giới riêng.
.>>> Xem thêm: Bộ Sưu Tập +50 mẫu tủ quần áo cánh kính cường lực tinh tế 2023
Thiết kế nội thất chung cư bếp gỗ óc chó
Thiết kế nội thất bếp do kiến trúc sư HAPPY DECOR lên ý tưởng, mở rộng không gian kết nối với khu vực phòng khách.
Phương pháp này sẽ là giải pháp hữu hiệu trong việc biến đổi không gian căn hộ tối đa hóa cảm giác rộng rãi và thoáng mát. Ngoài ra, nó còn giúp tất cả các thành viên trong gia đình luôn gần gũi với nhau bất kể không gian trong căn hộ như thế nào.
Không gian mở rộng đến khu vực phòng khách
Đồ nội thất ở đây được làm từ gỗ cao cấp có màu nâu hạt dẻ đẹp mắt.
Lựa chọn bộ bàn ăn cùng chất liệu cũng là một phần không thể thiếu trong thiết kế nội thất phòng bếp bằng gỗ óc chó.
Đặc biệt, bộ bàn ăn bằng gỗ chắc chắn, sang trọng, được thiết kế đúng hình dáng, kích thước phù hợp với không gian bếp tạo nên không gian ăn uống, họp mặt gia đình thoải mái.
Ghế ăn có khung gỗ óc chó và được bọc bằng da mềm tạo thêm cảm giác hài hòa cho tổng thể thiết kế.
Bộ bàn ghế gỗ óc chó cao cấp thiết kế ấn tượng, bắt mắt
Bàn đảo là một yếu tố quan trọng của không gian bếp hiện đại. Vì vậy, chúng tôi bố trí một bàn đảo với bề mặt bằng đá nhân tạo với những đường cong tuyệt đẹp trên nền trắng sẽ tạo điểm nhấn trang trí độc đáo cho căn bếp. Đặt một số ghế cao xung quanh bàn đảo để tạo không gian ăn nhanh hoặc khu trò chuyện vui vẻ và lãng mạn trong không gian sống căn hộ của bạn.
Bàn đảo với những đường cong và mặt đá nhân tạo tạo điểm nhấn trang trí độc đáo trong căn bếp
Khu vực nấu nướng cũng được trang bị đầy đủ các dụng cụ để phục vụ gia đình trong quá trình chuẩn bị những bữa ăn ngon. Chúng tôi sử dụng gỗ óc chó cho tủ bếp, mang lại vẻ đẹp tự nhiên cho căn bếp và sự ấm áp cho không gian.
Tủ bếp thiết kế vách ngăn hình chữ L, cửa tủ và khay kéo được phân chia rõ ràng giúp gia chủ dễ dàng cất giữ các dụng cụ, thiết bị nhà bếp.
Hệ thống tủ bếp âm tường gỗ óc chó hình chữ L có vách ngăn rõ ràng, giúp gia chủ cảm thấy thoải mái hơn trong quá trình sử dụng
Ánh sáng cũng đóng một vai trò quan trọng trong không gian bếp. Chúng tôi xây dựng hệ thống đèn trần với thiết kế đơn giản, mang lại ánh sáng dễ chịu và tạo hiệu ứng trang trí thú vị. Đồng thời, ánh sáng do đèn tạo ra cũng giúp tăng sự thoải mái, thuận tiện trong quá trình nấu nướng, chuẩn bị bữa ăn.
Thiết kế nội thất khu thờ cúng cho căn hộ
Trong thiết kế nội thất khu thờ cúng việc sử dụng chất liệu gỗ tự nhiên sẽ tạo nên không gian tiện nghi, thân thiện.
Chúng tôi chọn bàn thờ làm bằng gỗ óc chó, với những đường nét trang trí tinh tế và hoa văn chạm khắc bởi bàn tay khéo léo của những người thợ thủ công, càng làm tăng thêm vẻ đẹp cho khu vực trang nghiêm này.
Ngoài ra, các đồ vật tôn giáo khác cũng được đặt trên bàn thờ nhằm tạo không gian linh thiêng và thể hiện lòng thành kính với tổ tiên.
Bàn thờ trong phòng thờ được chạm khắc ấn tượng với hoa văn đẹp mắt
Thiết kế nội thất căn hộ ba phòng ngủ
Nội thất phòng ngủ master
Thiết kế nội thất căn hộ 3 phòng ngủ Phòng ngủ master cũng được làm bằng gỗ óc chó tạo nên không gian nghỉ ngơi sang trọng, ấm áp và độc đáo.
Phòng ngủ master có ý tưởng thiết kế hiện đại, sang trọng và trang nhã
Chúng tôi chọn chiếc giường làm trung tâm của phòng ngủ chính với thiết kế đơn giản, đường nét tinh tế, các góc cong và các chi tiết rất chi tiết. Đầu giường được thiết kế bọc da sáng màu giúp tôn lên vẻ đẹp của món đồ nội thất này.
Ngoài ra, hãy chọn bộ ga trải giường và gối chất lượng cao, có màu sắc và hoa văn phù hợp với không gian tổng thể.
Ở hai bên giường, kiến trúc sư thiết kế hai chiếc bàn đầu giường làm bằng gỗ cao cấp, giúp gia chủ có thể đặt đèn ngủ hoặc các vật dụng khác giúp phòng ngủ trở nên sang trọng và ngăn nắp hơn.
Các món đồ nội thất đã được lựa chọn kỹ lưỡng và tỉ mỉ đến từng chi tiết theo từng phong cách để tạo nên một bố cục tổng thể hoàn hảo.
Bức tường phía sau đầu giường được chúng tôi thiết kế rất ấn tượng, sử dụng kết hợp nhựa PVC và tấm gỗ tôn để trang trí cho bức tường ở đây.
Việc sử dụng các tấm tôn ở phía dưới và tấm nhựa PVC bóng với những đường mạ vàng ở phía trên mang lại cho phòng ngủ chính sức hấp dẫn khiến ai cũng phải trầm trồ trước vẻ đẹp mà nó sở hữu.
Vách ngăn phòng 2 trong 1 “đa năng”, đầy đủ tiện nghi
Khu vực TV cũng được đặt ở trung tâm căn phòng với vách ngăn lớn. Một chiếc TV màn hình siêu phẳng được đặt chính giữa với tầm nhìn hợp lý và cân đối, mang đến cho gia chủ một không gian thoải mái để thư giãn và thưởng thức những bộ phim hay bản nhạc yêu thích khi trở về nhà sau ngày làm việc mệt mỏi, ngôi nhà thân yêu của mình.
Bàn trang điểm có gương lớn và ngăn kéo đựng mỹ phẩm và các phụ kiện cần thiết
Điều đặc biệt hơn nữa là vách ngăn không chỉ có thể đựng được TV mà chúng tôi còn thiết kế khu vực bàn trang điểm phía sau. Tất cả những điều này được tích hợp để cung cấp một sản phẩm “đa chức năng” như vậy.
Bàn trang điểm bằng gỗ óc chó với gương lớn và ngăn kéo để trang điểm và phụ kiện tạo nên một không gian vừa trang trí vừa tiện dụng. Đi kèm ghế trang điểm thoải mái với chiều cao hợp lý và phù hợp với phong cách thiết kế.
Đặt thêm cây xanh gần cửa sổ
Tủ quần áo cũng là một phần không thể thiếu trong không gian phòng ngủ master. Chúng tôi bố trí tủ quần áo phía sau vách ngăn giữa phòng ngủ chính và phòng tắm.
Chúng tôi bố trí 2 bộ hệ thống tủ âm tường có cửa kính cường lực trong suốt giúp gia chủ sử dụng thuận tiện. Đèn chạy dọc theo mép tủ cũng được tích hợp bên trong đảm bảo tính thẩm mỹ cho không gian.
Hệ thống tủ âm tường có cửa kính cường lực mang lại không gian có tính thẩm mỹ cao
Nội thất phòng ngủ bé trai
Phòng ngủ con trai cũng có ý tưởng thiết kế tương tự như phòng ngủ chính nhưng điểm khác biệt duy nhất là không gian hẹp hơn một chút.
Nhìn từ cửa vào, màu trắng là màu chủ đạo, hòa quyện với tông màu nâu hạt dẻ, tạo nên không gian phòng ngủ tiện nghi và sang trọng. Nội thất đều được làm bằng gỗ cao cấp, sắp xếp khoa học và phù hợp với Phong Thủy.
Tận dụng ánh sáng tự nhiên tràn vào không gian của bạn từ cửa sổ và sử dụng ánh sáng một cách khôn ngoan. Ngoài ra, chúng tôi còn lắp đặt đèn LED trên trần nhà để con trai sử dụng khi cần thiết.
Phòng ngủ chủ yếu có màu trắng nâu hạt dẻ, mang đến cho không gian vẻ đẹp sang trọng và hiện đại.
Giường, tủ, tủ và các vật dụng khác đều được làm bằng gỗ óc chó
Ý tưởng thiết kế không gian làm việc rất đơn giản, với một chiếc bàn lớn đặt sát tường
Chúng tôi đặt không gian làm việc của mình ở cuối giường gần cửa sổ, hoàn chỉnh với một chiếc bàn lớn có giá sách tích hợp. Vị trí này rất phù hợp để giúp con trai của gia đình có không gian học tập hiệu quả.
Nội thất phòng ngủ được thiết kế dành cho khách
Đối với những ngôi nhà có hai thế hệ sinh sống và có khách thường xuyên ghé thăm, phòng ngủ được thiết kế dành cho khách cũng là điều được gia chủ cân nhắc.Căn hộ 3 Phòng ngủ Ý tưởng thiết kế của phòng ngủ này rất đơn giản, nó dựa trên chủ đề sử dụng vật liệu.ngành công nghiệp gỗ chủ yếu.
Do không gian căn phòng này không được sử dụng thường xuyên nên anh Thiện quyết định chọn gỗ công nghiệp làm vật liệu chủ đạo. Cách làm này sẽ giúp gia chủ tiết kiệm chi phí hơn so với việc sử dụng 100% gỗ óc chó.
Phòng ngủ dự kiến sẽ lựa chọn phương án sử dụng chất liệu gỗ công nghiệp
Do có kích thước vừa phải nên chúng tôi lựa chọn nội thất thông minh để bố trí tại đây. Ví dụ: chúng tôi đã chọn một món đồ có hai chức năng "nâng cao": bộ ghế sofa. Không chỉ có thể dùng làm ghế xem tivi, nghe nhạc hay thậm chí là đọc sách mà nó còn có chức năng dễ dàng biến thành một chiếc giường hoàn chỉnh vô cùng tiện lợi.Khá tuyệt vời phải không?
Chọn bộ sofa 2 trong 1 vừa làm ghế vừa làm giường êm ái
Hệ thống tủ âm tường được làm bằng gỗ công nghiệp và có kiểu dáng đơn giản phù hợp với phong cách thiết kế.
Để không gian bớt đơn điệu, chúng tôi nảy ra ý tưởng thiết kế trang trí khu vực này bằng những vật liệu quen thuộc như tôn và giả nhựa PVC. Các sản phẩm điện tử như TV, loa, radio cũng được trang bị đầy đủ và bố trí ở vị trí cân đối với tầm nhìn hợp lý tạo không gian thư giãn, thoải mái cho khách hàng.
Thiết kế nội thất phòng tắm
Phòng tắm của anh được kiến trúc sư thiết kế và khép kín trong mỗi phòng ngủ. Đây là ý tưởng tuyệt vời giúp tiết kiệm tối đa không gian trong căn hộ mà vẫn đảm bảo sự thoải mái trong quá trình sử dụng.
Hãy cùng chiêm ngưỡng mẫu thiết kế nội thất 3 phòng tắm chúng tôi mang đến cho gia đình anh Thiện dưới đây nhé!
Nội thất phòng tắm phòng ngủ Master
Phòng tắm trong phòng ngủ Master lớn hơn các phòng tắm khác. Nó được trang bị đầy đủ và lắp đặt ở vị trí hợp lý, mang đến không gian thoải mái. Khu vực khô và ướt được ngăn cách bằng vách ngăn tôn đẹp mắt, giúp phòng tắm khô ráo, sạch sẽ và thông thoáng hơn.
Phòng tắm master được thiết kế rộng rãi và ấn tượng
Concept khu tiểu cảnh rất đẹp
Tận dụng thông minh hai luồng ánh sáng: ánh sáng tự nhiên và ánh sáng nhân tạo
Nội thất phòng tắm phòng ngủ con trai
Chúng tôi bố trí phòng tắm ở một góc phòng ngủ của con trai. Điều này sẽ đảm bảo vẻ đẹp của căn phòng.
Chúng tôi lựa chọn gạch ốp tường sáng màu với những đường vân đá mềm mại, đàn hồi trên bề mặt, tạo nên một không gian “đẹp” lạ thường.
Thiết kế phòng tắm ấn tượng và những trang thiết bị cần thiết đã được lựa chọn kỹ lưỡng
Dù diện tích có hạn nhưng chúng tôi đã cố gắng hết sức để lắp đặt những trang thiết bị cần thiết nhất để mang đến một không gian thoải mái và thuận tiện cho con trai mình.
Ngoài ra, các kiến trúc sư đã sử dụng những tấm kính cường lực trong suốt để phân chia hai khu vực khô và ướt riêng biệt. Đặc biệt, những bộ phận khô ráo như bồn rửa, bồn cầu thường được đặt gần cửa ra vào và luôn khô ráo để phục vụ cho việc thay đồ, vệ sinh cá nhân của người dùng… Khu vực ẩm ướt bao gồm vòi hoa sen thường xuyên tiếp xúc với nước.
Việc phân chia này sẽ là giải pháp hợp lý có thể giúp không gian phòng tắm trở nên thông thoáng, khô ráo, sạch sẽ, đặc biệt không có mùi khó chịu ảnh hưởng đến tâm trạng người dùng.
Khu vực khô và ướt được ngăn cách bằng tấm kính cường lực trong suốt
Ngoài ra, để tăng thêm sự tiện lợi cho không gian phòng tắm này, chúng tôi có thêm tủ đựng đồ giúp người dùng đặt các vật dụng cá nhân, khăn tắm, sữa rửa mặt,… vào một nơi.Phương pháp sắp xếp cố định giúp không gian ngăn nắp hơn trước.
Các tủ đựng đồ cũng được lắp đặt chắc chắn, tạo cảm giác thân thiện và thoải mái cho người sử dụng.
Lên kế hoạch nội thất phòng tắm trong phòng
Phòng tắm trong phòng quy hoạch cũng có ý tưởng thiết kế không thua kém gì hai phòng tắm trước.
Phòng tắm ấn tượng với gương chiếu sáng đẹp
Khi bước vào, bạn sẽ bị ấn tượng bởi vẻ đẹp giản dị của chiếc gương tròn hòa quyện với ánh sáng từ đèn LED xung quanh tạo nên một không gian sang trọng, hiện đại.
Bố trí thiết bị khoa học
Các thiết bị cũng được lựa chọn, bố trí, lắp đặt kỹ càng, hợp lý và khoa học. Đặc biệt, bồn rửa và toilet được bố trí gần cửa, còn vòi sen được gắn trên tường đối diện với khu vực rửa.
Đèn vàng của chúng tôi được gắn chắc chắn vào trần nhà mang đến một không gian thoáng mát, sáng sủa và không bị chật chội.
Đèn được gắn chắc chắn trên trần nhà cung cấp cho người dùng ánh sáng vừa phải
Công trình thiết kế và thi công nội thất của gia đình anh Thiện được hoàn thành đúng thời hạn, đúng hợp đồng đã ký kết. Anh Thiện rất hài lòng với sản phẩm hoàn thiện mà HAPPY DECOR gửi gia đình anh ấy.
Anh Thiện chia sẻ:
“Tôi rất hài lòng với dịch vụ thiết kế nội thất căn hộ này. Đội ngũ thiết kế tại Happy Decor đã làm rất tốt việc tạo ra một không gian sống đẹp và hiện đại cho căn hộ của tôi. Các bạn đã lắng nghe ý kiến của tôi và đưa ra những ý tưởng sáng tạo để tạo ra một không gian thực sự phù hợp với phong cách sống của gia đình chúng tôi. Tôi rất thoải mái và hài lòng với kết quả cuối cùng và tôi sẽ giới thiệu bạn bè, người thân tìm đến dịch vụ thiết kế, thi công nội thất tại Happy Decor nếu có nhu cầu. "
Mỗi dự án mang đến cho chúng tôi những cung bậc cảm xúc khác nhau, và mỗi dự án là sự khởi đầu cho một trải nghiệm thú vị, nỗ lực mang đến không gian sống hoàn hảo cho khách hàng.
Những phản hồi của khách hàng sẽ là động lực rất lớn để Happy Decor tiếp tục nỗ lực mỗi ngày để cung cấp những dịch vụ hoàn hảo và đáp ứng nhu cầu của mọi khách hàng đã tin tưởng chúng tôi.
Đừng tìm đâu xa, đừng quên liên hệ với chúng tôi nếu bạn đang có ý định trang trí căn hộ của gia đình mình trở nên sang trọng, hiện đại và đẹp mắt bằng vật liệu gỗ chất lượng tương tự như gia đình anh Thiệp. Hãy liên hệ với chúng tôi ngay hôm nay để được báo giá và tư vấn miễn phí. Chúng ta hãy góp phần khiêm tốn của mình để xây dựng một ngôi nhà đẹp!
0946272286
>>> Xem thêm:
-
Căn hộ Amber Court Biên Hòa thiết kế nội thất 104m2 đẹp duyên dáng
-
Thiết kế nội thất Chung cư Horizon Tower - Q1 - Tp Hồ Chí Minh
-
Thiết kế nội thất nhà phố mặt tiền 7m ấn tượng của anh Việt, Trảng Dài

































Xem thêm